Description de l'offre
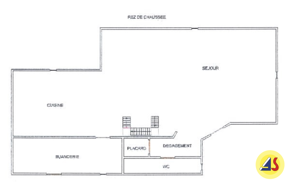
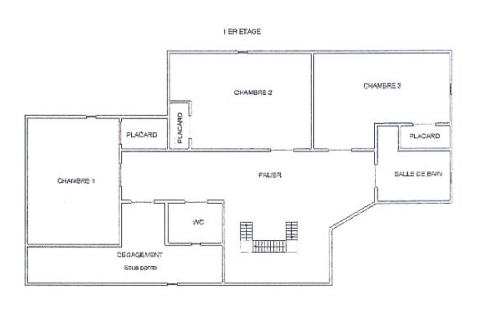
REZE TRENTEMOULT. Cette maison impeccable, située à l’abri des regards, ne se dévoile pas en images. Seule une visite sur place permettra d'en apprécier les volumes et le calme. La réception de 57,5 m² avec cuisine aménagée constitue le cœur de la maison et donne un accès direct au jardin. Ce niveau dispose également d'une lingerie-chaufferie fonctionnelle. Le premier étage dessert trois chambres, une salle de bains et un wc indépendant, tandis que les combles accueillent une quatrième chambre. L’ensemble bénéficie d’un chauffage au gaz et affiche un DPE classé D. Un garage de 30 m², atout majeur et rare sur le secteur, complète cette propriété. Les informations sur les risques auxquels ce bien est exposé sont disponibles sur le site Géorisques : www.georisques.gouv.fr.
